An Intimate Backyard Oasis
IN WYCKOFF, NJ
Learn More About the Project
See the Transformation
Project Description
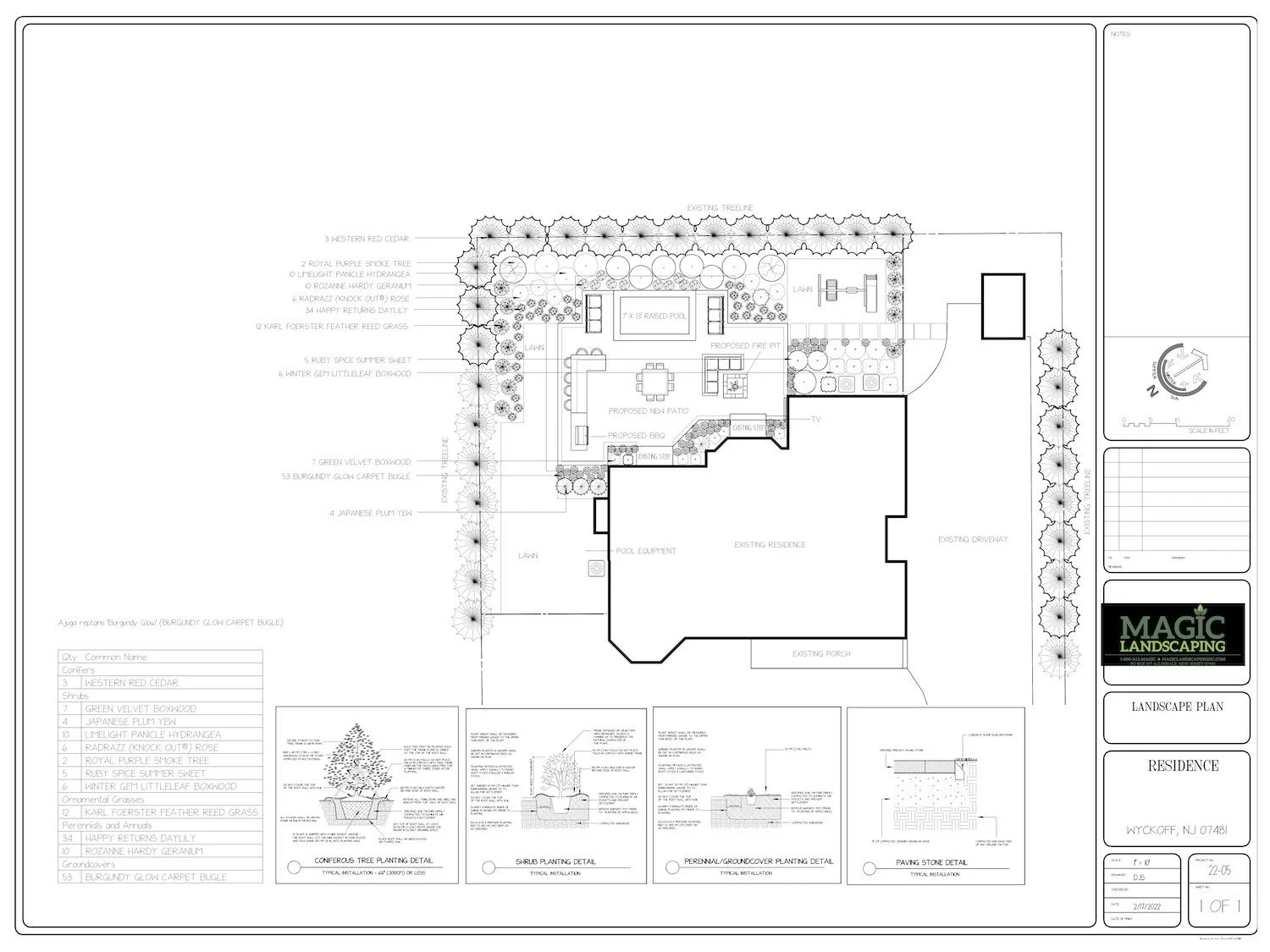
This enchanting outdoor transformation in Wyckoff, NJ, turned a compact backyard into an elegant and functional retreat. At the heart of the design is a Soake Pool, a sleek, fully tiled, and plumbed feature that arrived pre-assembled to blend seamlessly with the surrounding space. The addition of a firepit, BBQ area, and thoughtfully curated plantings elevated the backyard into a cozy yet sophisticated outdoor haven. Durable tread-quality Bluestone coping was used throughout to tie the elements together, creating a polished, cohesive look.
-
This project presented several unique challenges:
Limited Space
The backyard’s compact size required a strategic layout to maximize functionality while maintaining a visually pleasing design.Low-Key Design Goals
The client wanted a sophisticated yet understated aesthetic—no flashy or overbearing elements.Deer-Resistant Planting
While typically deer-prone, this site’s enclosed design allowed for a broader plant palette. We incorporated hydrangeas, roses, clethra, and annuals like geraniums and daylilies to create a lush, colorful garden without the worry of deer intrusion.
To address these challenges, we carefully planned the placement of every feature and utilized durable materials and vibrant plants that thrive in small spaces.
-
Intimate, Sophisticated, Low-Key, Polished, Vibrant, Functional
-
Soake Pool, Tread-Quality Bluestone Coping, Firepit, BBQ Area, Layered Plantings
-
$200K
-
Wyckoff, NJ
-
Residential, Design/Build, Complete Renovation
Additional Project Information
Continue Exploring Our Portfolio
-

Classic Front Yard Transformation
-

Woodcliff Lake Serene Getaway
-

Summer Fun in Upper Saddle River



